Page Content
Waste Management
(Forms) (Jersey) Order 2006
Revised
Edition
22.950.30
Showing the law as
at 1 January 2007
This is a revised
edition of the law
Waste Management
(Forms) (Jersey) Order 2006
THE MINISTER FOR
PLANNING AND ENVIRONMENT, in pursuance of Articles 21 and 108 of the Waste Management
(Jersey) Law 2005[1], orders as follows –
Commencement
[see endnotes]
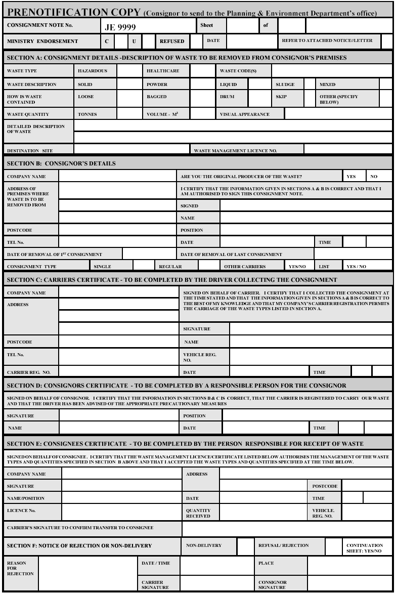
1 Forms of consignment notes
(1) The
consignment note for the internal movement of waste, for the purposes of Part 3
of the Waste Management (Jersey) Law 2005[2], shall be in the form set out as Form 1 in the Schedule.
(2) The consignment note
for the transboundary movement of waste, for the purposes of Part 4 of the
Waste Management (Jersey) Law 2005, shall be in the form set out as Form 2
in the Schedule.
2 Citation
This Order may be cited as the
Waste Management (Forms) (Jersey) Order 2006.
SCHEDULE
(Article 1)
FORMS
OF CONSIGNMENT NOTES
Form 1
Consignment note for internal movement of waste

Form 2
Consignment note for transboundary movement of waste

List of abbreviations and codes used in the
notification form



Page Last Updated: 28 Feb 2023